ГОСТ 12.2.233-2012 Система стандартов безопасности труда. Системы холодильные холодопроизводительностью свыше 3,0 кВт. Требования безопасности

Категории ГОСТ 12.2.233-2012 по ОКС:
Статус документа:
действует, введён в действие 01.01.2014
Название на английском языке:
Occupational safety standards system. Refrigerating equipment of refrigerating capacity over 3,0 kW. Safety requirements
Дата актуализации информации по стандарту:
20.10.2025, в 12:35 (менее месяца назад)
Вид стандарта:
Основополагающие стандарты
Дата начала действия ГОСТа:
2014-01-01
Дата последнего издания документа:
2014-01-20
Число страниц:
45
Назначение ГОСТ 12.2.233-2012:
Настоящий стандарт распространяется на холодильные системы холодопроизводительностью свыше 3,0 кВт при стандартном режиме (холодильные машины, агрегаты, компрессоры, теплообменные аппараты, тепловые наносы) и устанавливает требования безопасности конструкции холодильных систем
Документ разработан орг-ей:
Федеральное агентство по техническому регулированию и метрологии (Росстандарт)
Документ принят орг-ей:
Межгосударственный Совет по стандартизации метрологии и сертификации, протокол №42-2012
Ключевые слова документа:
конструкция, контроль выполнения требований безопасности, сертификация, средства защиты, требования безопасности, хладагенты, холодильные системы, холодопроизводительность

Скачать ГОСТ 12.2.233-2012 вы можете в следующих версиях:

В данный момент версий документа для скачивания не добавлено.

Мы стараемся пополнять базу документов еженедельно и из разных источников, в обозримом будущем версии для этого ГОСТа появятся.

Вы можете просмотреть online текст стандарта ГОСТ 12.2.233-2012

Просмотреть текст ГОСТ 12.2.233-2012

Поправки и изменения к ГОСТ 12.2.233-2012:

  • Наименование, вид:
    Дата
    регистрации:
    начала действия:
  • Поправка к ГОСТ 12.2.233-2012

    Тип изменения: Поправка
    Номер изменения:
    Регистрационный номер: -

    2022-01-25
    2022-01-25

Текст стандарта

  • ГОСТ 12.2.233-2012, страница 1 страница 1
  • ГОСТ 12.2.233-2012, страница 2 страница 2
  • ГОСТ 12.2.233-2012, страница 3 страница 3
  • ГОСТ 12.2.233-2012, страница 4 страница 4
  • ГОСТ 12.2.233-2012, страница 5 страница 5
  • ГОСТ 12.2.233-2012, страница 6 страница 6
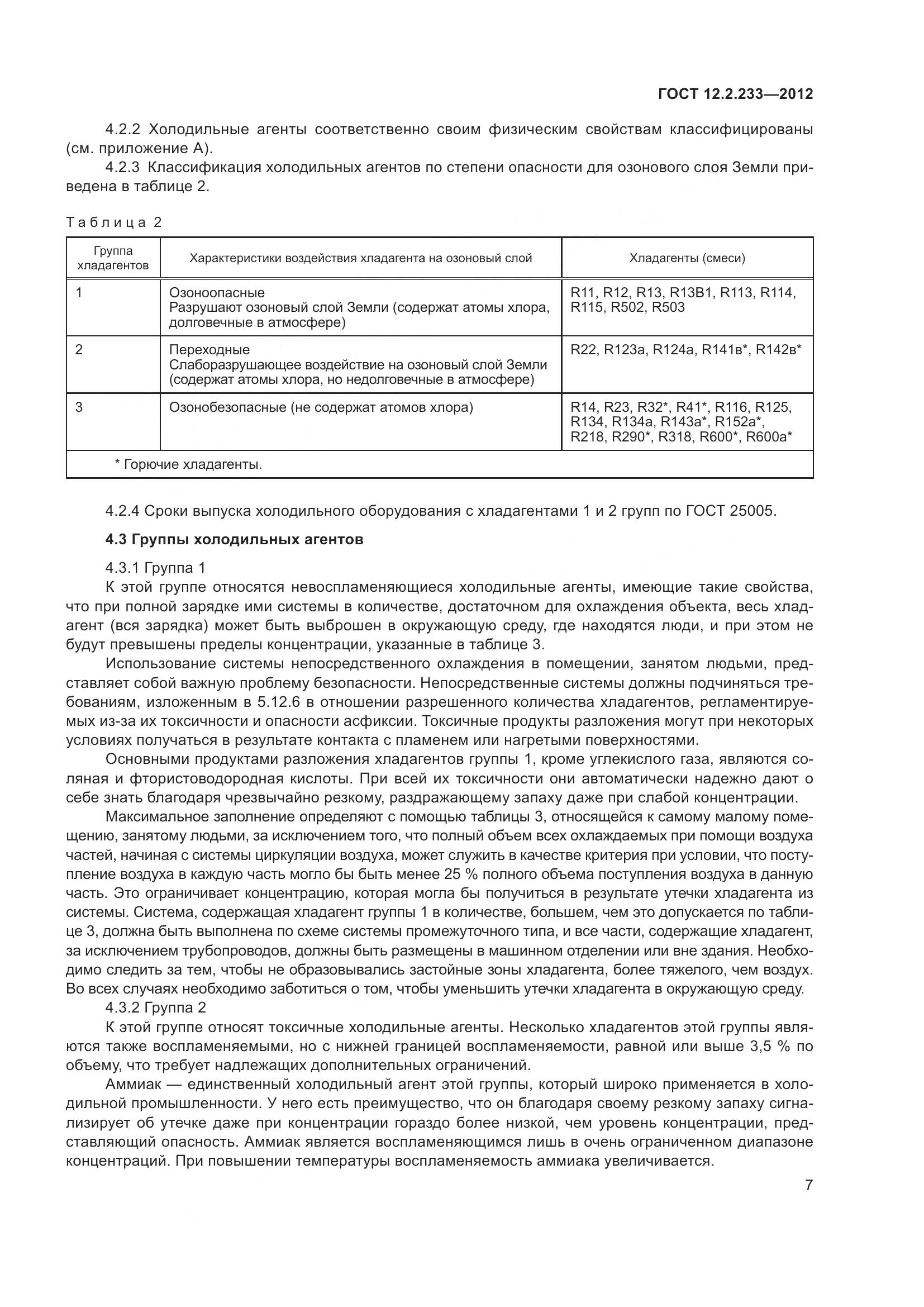
  • ГОСТ 12.2.233-2012, страница 7 страница 7
  • ГОСТ 12.2.233-2012, страница 8 страница 8
  • ГОСТ 12.2.233-2012, страница 9 страница 9
  • ГОСТ 12.2.233-2012, страница 10 страница 10
  • ГОСТ 12.2.233-2012, страница 11 страница 11
  • ГОСТ 12.2.233-2012, страница 12 страница 12
  • ГОСТ 12.2.233-2012, страница 13 страница 13
  • ГОСТ 12.2.233-2012, страница 14 страница 14
  • ГОСТ 12.2.233-2012, страница 15 страница 15
  • ГОСТ 12.2.233-2012, страница 16 страница 16
  • ГОСТ 12.2.233-2012, страница 17 страница 17
  • ГОСТ 12.2.233-2012, страница 18 страница 18
  • ГОСТ 12.2.233-2012, страница 19 страница 19
  • ГОСТ 12.2.233-2012, страница 20 страница 20
  • ГОСТ 12.2.233-2012, страница 21 страница 21
  • ГОСТ 12.2.233-2012, страница 22 страница 22
  • ГОСТ 12.2.233-2012, страница 23 страница 23
  • ГОСТ 12.2.233-2012, страница 24 страница 24
  • ГОСТ 12.2.233-2012, страница 25 страница 25
  • ГОСТ 12.2.233-2012, страница 26 страница 26
  • ГОСТ 12.2.233-2012, страница 27 страница 27
  • ГОСТ 12.2.233-2012, страница 28 страница 28
  • ГОСТ 12.2.233-2012, страница 29 страница 29
  • ГОСТ 12.2.233-2012, страница 30 страница 30
  • ГОСТ 12.2.233-2012, страница 31 страница 31
  • ГОСТ 12.2.233-2012, страница 32 страница 32
  • ГОСТ 12.2.233-2012, страница 33 страница 33
  • ГОСТ 12.2.233-2012, страница 34 страница 34
  • ГОСТ 12.2.233-2012, страница 35 страница 35
  • ГОСТ 12.2.233-2012, страница 36 страница 36
  • ГОСТ 12.2.233-2012, страница 37 страница 37
  • ГОСТ 12.2.233-2012, страница 38 страница 38
  • ГОСТ 12.2.233-2012, страница 39 страница 39
  • ГОСТ 12.2.233-2012, страница 40 страница 40
  • ГОСТ 12.2.233-2012, страница 41 страница 41
  • ГОСТ 12.2.233-2012, страница 42 страница 42
  • ГОСТ 12.2.233-2012, страница 43 страница 43
  • ГОСТ 12.2.233-2012, страница 44 страница 44
  • ГОСТ 12.2.233-2012, страница 45 страница 45