ГОСТ 23342-2012 Изделия архитектурно-строительные из природного камня. Технические условия

Категории ГОСТ 23342-2012 по ОКС:
Статус документа:
действует, введён в действие 01.01.2014
Название на английском языке:
Architectural-building goods of the natural stone. Specifications
Дата актуализации информации по стандарту:
20.10.2025, в 12:52 (несколько дней назад)
Вид стандарта:
Основополагающие стандарты
Дата начала действия ГОСТа:
2014-01-01
Дата последнего издания документа:
2014-04-10
Коды документа ГОСТ 23342-2012:
Код КГС:
Ж33
Число страниц:
25
Назначение ГОСТ 23342-2012:
Настоящий стандарт распространяется на архитектурно-строительные изделия, изготовляемые из природного камня и предназначенные для формирования системы украшения и защиты от негативных внешних воздействий фасадов и интерьеров зданий и сооружений, элементов городского благоустройства и садовопарковой архитектуры
Документ разработан орг-ей:
Федеральное агентство по техническому регулированию и метрологии (Росстандарт)
Документ принят орг-ей:
Межгосударственный Совет по стандартизации метрологии и сертификации, протокол №41
Нормативные ссылки, связанные с ГОСТ 23342-2012:

Скачать ГОСТ 23342-2012 вы можете в следующих версиях:

В данный момент версий документа для скачивания не добавлено.

Мы стараемся пополнять базу документов еженедельно и из разных источников, в обозримом будущем версии для этого ГОСТа появятся.

Вы можете просмотреть online текст стандарта ГОСТ 23342-2012

Просмотреть текст ГОСТ 23342-2012

Текст стандарта

  • ГОСТ 23342-2012, страница 1 страница 1
  • ГОСТ 23342-2012, страница 2 страница 2
  • ГОСТ 23342-2012, страница 3 страница 3
  • ГОСТ 23342-2012, страница 4 страница 4
  • ГОСТ 23342-2012, страница 5 страница 5
  • ГОСТ 23342-2012, страница 6 страница 6
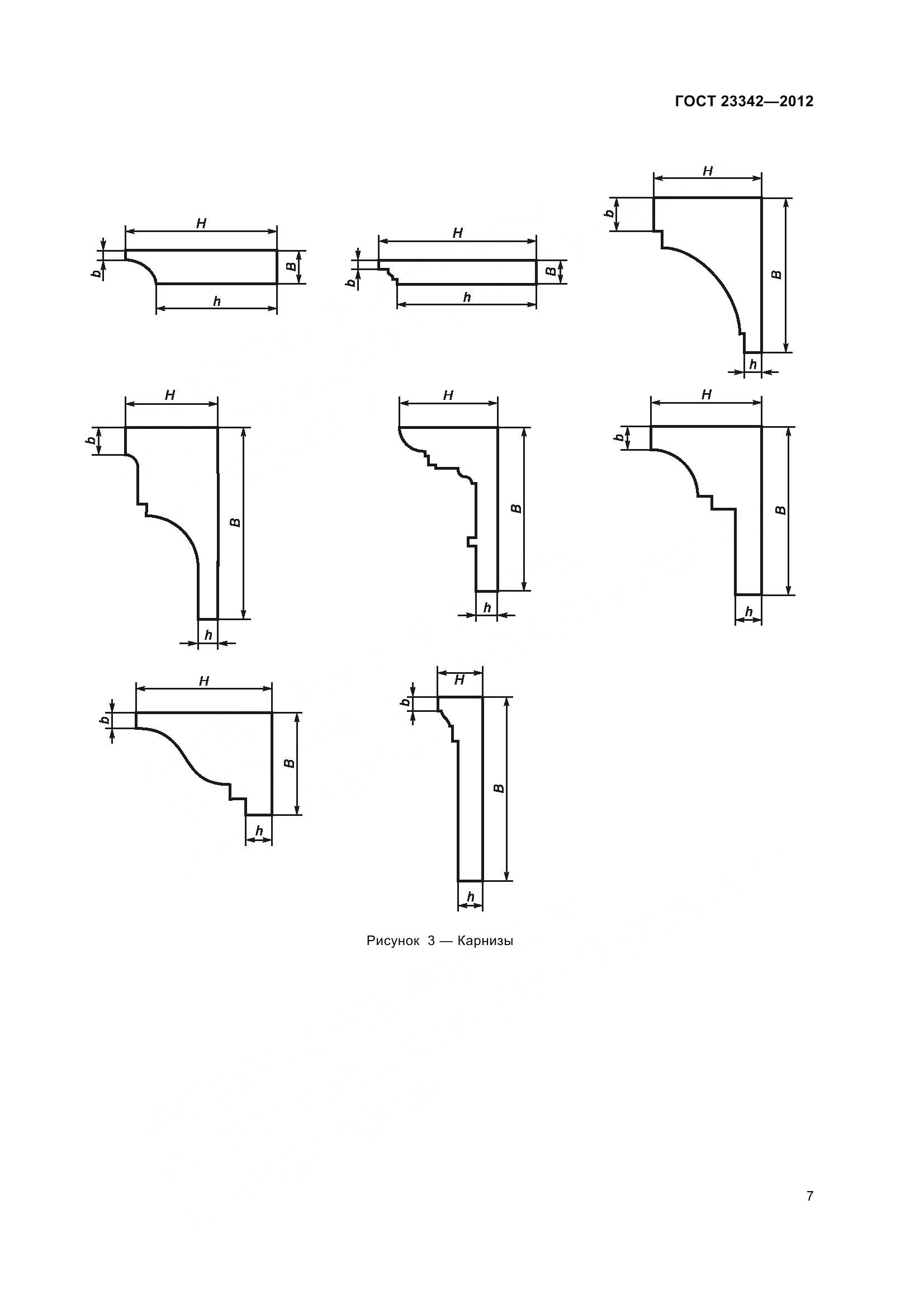
  • ГОСТ 23342-2012, страница 7 страница 7
  • ГОСТ 23342-2012, страница 8 страница 8
  • ГОСТ 23342-2012, страница 9 страница 9
  • ГОСТ 23342-2012, страница 10 страница 10
  • ГОСТ 23342-2012, страница 11 страница 11
  • ГОСТ 23342-2012, страница 12 страница 12
  • ГОСТ 23342-2012, страница 13 страница 13
  • ГОСТ 23342-2012, страница 14 страница 14
  • ГОСТ 23342-2012, страница 15 страница 15
  • ГОСТ 23342-2012, страница 16 страница 16
  • ГОСТ 23342-2012, страница 17 страница 17
  • ГОСТ 23342-2012, страница 18 страница 18
  • ГОСТ 23342-2012, страница 19 страница 19
  • ГОСТ 23342-2012, страница 20 страница 20
  • ГОСТ 23342-2012, страница 21 страница 21
  • ГОСТ 23342-2012, страница 22 страница 22
  • ГОСТ 23342-2012, страница 23 страница 23
  • ГОСТ 23342-2012, страница 24 страница 24
  • ГОСТ 23342-2012, страница 25 страница 25