ГОСТ 2517-2012 Нефть и нефтепродукты. Методы отбора проб

Категории ГОСТ 2517-2012 по ОКС:
Статус документа:
действует, введён в действие 01.03.2014
Название на английском языке:
Petroleum and petroleum products. Methods of sampling
Дата актуализации информации по стандарту:
23.06.2025, в 12:38 (менее полугода назад)
Вид стандарта:
Стандарты на методы контроля
Дата начала действия ГОСТа:
2014-03-01
Дата последнего издания документа:
2018-08-06
Коды документа ГОСТ 2517-2012:
Код ОКСТУ:
0209
Число страниц:
37
Назначение ГОСТ 2517-2012:
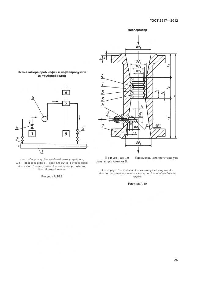
Настоящий стандарт устанавливает методы отбора проб нефти и нефтепродуктов из резервуаров, подземных хранилищ, нефтеналивных судов, железнодорожных и автомобильных цистерн, трубопроводов, бочек, бидонов и других средств хранения и транспортирования. Стандарт не распространяется на сжиженные газы и нефтяной кокс замедленного коксования
Документ разработан орг-ей:
Федеральное агентство по техническому регулированию и метрологии (Росстандарт)
Документ принят орг-ей:
Межгосударственный Совет по стандартизации метрологии и сертификации, протокол №52
Ключевые слова документа:
нефтепродукты, нефть, отбор проб, пробозаборное устройство, пробосборник, точечная проба

Скачать ГОСТ 2517-2012 вы можете в следующих версиях:

В данный момент версий документа для скачивания не добавлено.

Мы стараемся пополнять базу документов еженедельно и из разных источников, в обозримом будущем версии для этого ГОСТа появятся.

Вы можете просмотреть online текст стандарта ГОСТ 2517-2012

Просмотреть текст ГОСТ 2517-2012

Поправки и изменения к ГОСТ 2517-2012:

  • Наименование, вид:
    Дата
    регистрации:
    начала действия:
  • Изменение №1 к ГОСТ 2517-2012

    Тип изменения: Текстовое изменение
    Номер изменения: 1
    Регистрационный номер: 193-ст

    2018-04-13
    2018-05-01
  • Поправка к ГОСТ 2517-2012

    Тип изменения: Поправка
    Номер изменения:
    Регистрационный номер: -

    2016-03-25
    2016-03-25

Текст стандарта

  • ГОСТ 2517-2012, страница 1 страница 1
  • ГОСТ 2517-2012, страница 2 страница 2
  • ГОСТ 2517-2012, страница 3 страница 3
  • ГОСТ 2517-2012, страница 4 страница 4
  • ГОСТ 2517-2012, страница 5 страница 5
  • ГОСТ 2517-2012, страница 6 страница 6
  • ГОСТ 2517-2012, страница 7 страница 7
  • ГОСТ 2517-2012, страница 8 страница 8
  • ГОСТ 2517-2012, страница 9 страница 9
  • ГОСТ 2517-2012, страница 10 страница 10
  • ГОСТ 2517-2012, страница 11 страница 11
  • ГОСТ 2517-2012, страница 12 страница 12
  • ГОСТ 2517-2012, страница 13 страница 13
  • ГОСТ 2517-2012, страница 14 страница 14
  • ГОСТ 2517-2012, страница 15 страница 15
  • ГОСТ 2517-2012, страница 16 страница 16
  • ГОСТ 2517-2012, страница 17 страница 17
  • ГОСТ 2517-2012, страница 18 страница 18
  • ГОСТ 2517-2012, страница 19 страница 19
  • ГОСТ 2517-2012, страница 20 страница 20
  • ГОСТ 2517-2012, страница 21 страница 21
  • ГОСТ 2517-2012, страница 22 страница 22
  • ГОСТ 2517-2012, страница 23 страница 23
  • ГОСТ 2517-2012, страница 24 страница 24
  • ГОСТ 2517-2012, страница 25 страница 25
  • ГОСТ 2517-2012, страница 26 страница 26
  • ГОСТ 2517-2012, страница 27 страница 27
  • ГОСТ 2517-2012, страница 28 страница 28
  • ГОСТ 2517-2012, страница 29 страница 29
  • ГОСТ 2517-2012, страница 30 страница 30
  • ГОСТ 2517-2012, страница 31 страница 31
  • ГОСТ 2517-2012, страница 32 страница 32
  • ГОСТ 2517-2012, страница 33 страница 33
  • ГОСТ 2517-2012, страница 34 страница 34
  • ГОСТ 2517-2012, страница 35 страница 35
  • ГОСТ 2517-2012, страница 36 страница 36
  • ГОСТ 2517-2012, страница 37 страница 37