ГОСТ 31840-2012
ГОСТ 31840-2012 Насосы погружные и агрегаты насосные. Требования безопасности
Категории ГОСТ 31840-2012 по ОКС:- Статус документа:
- действует, введён в действие 01.01.2014
- Название на английском языке:
- Submersible pumps and pump units. Safety requirements
- Дата актуализации информации по стандарту:
- 17.09.2019, в 11:07 (более года назад)
- Вид стандарта:
- Основополагающие стандарты
- Дата начала действия ГОСТа:
- 2014-01-01
- Дата последнего издания документа:
- 2014-04-17
Коды документа ГОСТ 31840-2012:
- Код КГС:
- Г82
- Число страниц:
- 20
- Назначение ГОСТ 31840-2012:
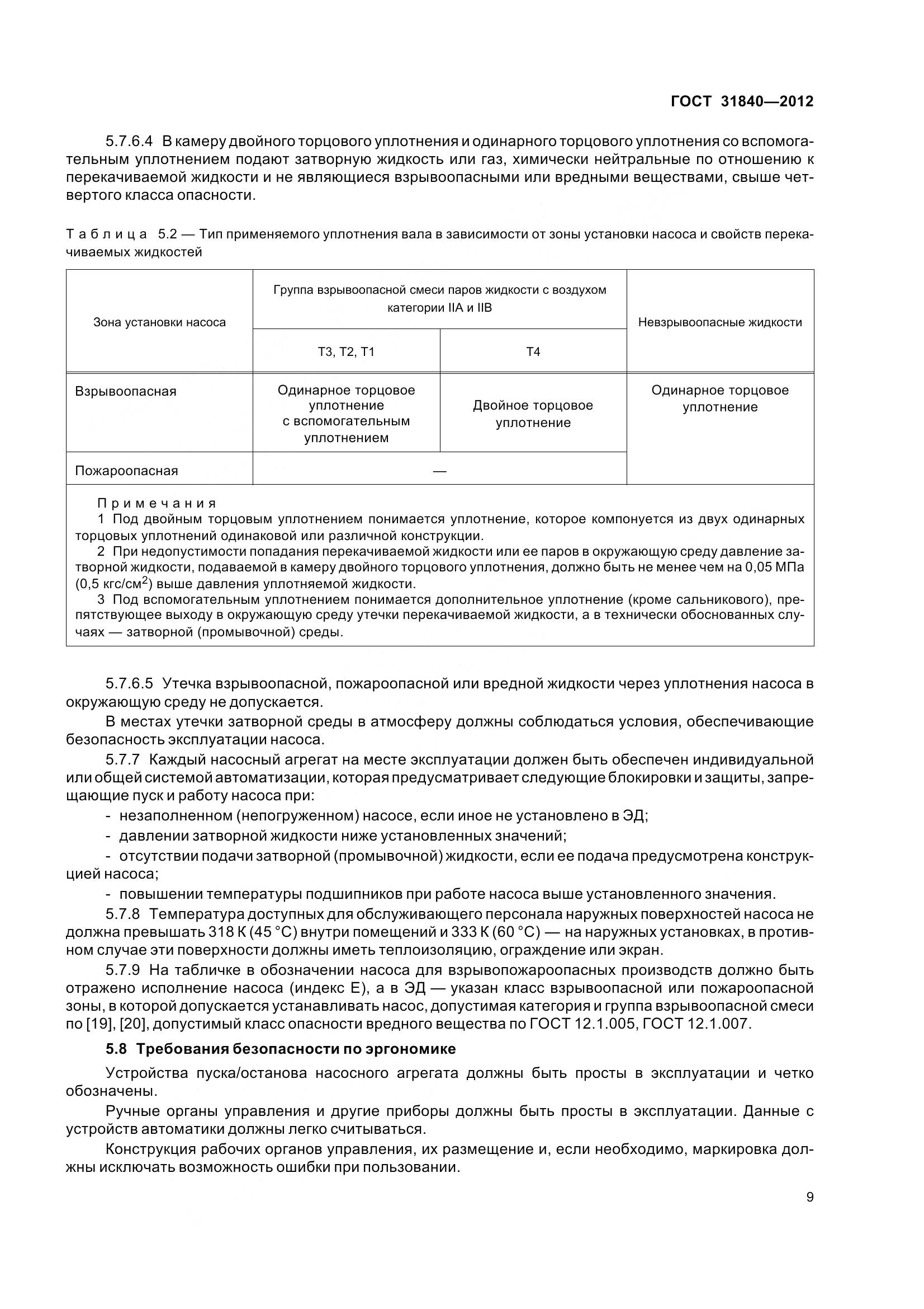
- Настоящий стандарт распространяется на погружные и полупогружные насосы и насосные агрегаты и устанавливает требования безопасности к их конструированию, сборке, монтажу, эксплуатации, техобслуживанию, средствам автоматизации, защиты, сигнализации и контроля. Настоящий стандарт устанавливает перечень основных источников опасности при эксплуатации насоса или насосного агрегата, и определяет требования и/или мероприятия по снижению опасности. Требования настоящего стандарта не распространяются на: - насосы и насосные агрегаты, приводимые в действие исключительно вручную; - насосы и насосные агрегаты для медицинского использования, находящиеся в непосредственном контакте с пациентом; - насосы и насосные агрегаты, специально разработанные для эксплуатации
- Документ разработан орг-ей:
- Федеральное агентство по техническому регулированию и метрологии
- Документ принят орг-ей:
- Межгосударственный Совет по стандартизации метрологии и сертификации, протокол №42-2012
- Ключевые слова документа:
- виды опасности, насосы погружные, требования безопасности
Нормативные ссылки, связанные с ГОСТ 31840-2012:
- Стандарт ссылается на ГОСТы:
- ГОСТ Р МЭК 60204-1-2007, ГОСТ Р ИСО 12100-2-2007, ГОСТ Р ИСО 12100-1-2007, ГОСТ МЭК 60204-1-2002, ГОСТ ИСО/ТО 12100-2-2002, ГОСТ ИСО/ТО 12100-1-2001, ГОСТ ИСО 2954-97, ГОСТ 12.1.018-93, ГОСТ 14254-96, ГОСТ 21130-75, ГОСТ 12.4.124-83, ГОСТ 12.2.007.0-75, ГОСТ 12.2.003-91, ГОСТ 12.1.044-89, ГОСТ 12.1.029-80, ГОСТ 17398-72, ГОСТ 12.1.007-76, ГОСТ 12.1.005-88, ГОСТ 12.1.004-91, ГОСТ 12.1.003-83, ГОСТ 6134-2007, ГОСТ 12.1.012-2004, ГОСТ 23941-2002, ГОСТ 17335-79, ГОСТ 2.610-2006, ГОСТ 2.601-2006
Скачать ГОСТ 31840-2012 вы можете в следующих версиях:
В данный момент версий документа для скачивания не добавлено.
Мы стараемся пополнять базу документов еженедельно и из разных источников, в обозримом будущем версии для этого ГОСТа появятся.
Вы можете просмотреть online текст стандарта ГОСТ 31840-2012
Просмотреть текст ГОСТ 31840-2012Текст стандарта
-
страница 1
-
страница 2
-
страница 3
-
страница 4
-
страница 5
-
страница 6
-
страница 7
-
страница 8
-
страница 9
-
страница 10
-
страница 11
-
страница 12
-
страница 13
-
страница 14
-
страница 15
-
страница 16
-
страница 17
-
страница 18
-
страница 19
-
страница 20