ГОСТ 33065-2014
ГОСТ 33065-2014 Фанера для авто-, вагоно-, контейнеростроения. Технические условия
Категории ГОСТ 33065-2014 по ОКС:- Статус документа:
- действует, введён в действие 01.01.2016
- Название на английском языке:
- Plywood for truck, car, container building. Specifications
- Дата актуализации информации по стандарту:
- 22.10.2025, в 19:46 (менее месяца назад)
- Вид стандарта:
- Стандарты на продукцию (услуги)
- Дата начала действия ГОСТа:
- 2016-01-01
- Дата последнего издания документа:
- 2015-08-19
- Число страниц:
- 16
- Назначение ГОСТ 33065-2014:
- Настоящий стандарт распространяется на фанеру повышенной водостойкости для авто-, вагоно-, контейнеростроения, облицованную с одной или двух сторон пленками на основе термореактивных полимеров, необлицованную под защитное покрытие, антисептированную. Фанера предназначена для изготовления полов контейнеров, деталей кузовов автомобилей, стен и полов грузовых вагонов, для использования в пассажирских вагонах. Положения настоящего стандарта распространяются на фанеру, выпускаемую и применяемую предприятиями (организациями) любых форм собственности, а также индивидуальными изготовителями
- Документ разработан орг-ей:
- Федеральное агентство по техническому регулированию и метрологии (Росстандарт)
- Документ принят орг-ей:
- Межгосударственный Совет по стандартизации метрологии и сертификации, протокол №72-П
- Ключевые слова документа:
- авто-, вагоно-, выделение формальдегида, контейнеростроение, лущеный шпон, пленка, термореактивные полимеры, технические требования, фанера, физико-механические показатели
Скачать ГОСТ 33065-2014 вы можете в следующих версиях:
В данный момент версий документа для скачивания не добавлено.
Мы стараемся пополнять базу документов еженедельно и из разных источников, в обозримом будущем версии для этого ГОСТа появятся.
Вы можете просмотреть online текст стандарта ГОСТ 33065-2014
Просмотреть текст ГОСТ 33065-2014Текст стандарта
- 
                             страница 1 страница 1
- 
                             страница 2 страница 2
- 
                             страница 3 страница 3
- 
                             страница 4 страница 4
- 
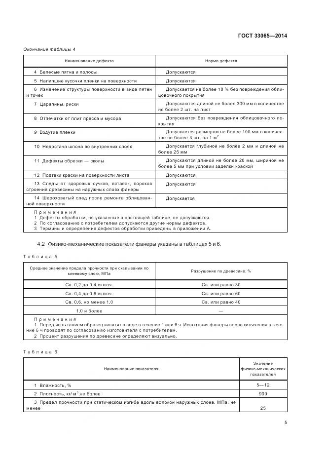
                             страница 5 страница 5
- 
                             страница 6 страница 6
- 
                             страница 7 страница 7
- 
                             страница 8 страница 8
- 
                             страница 9 страница 9
- 
                             страница 10 страница 10
- 
                             страница 11 страница 11
- 
                             страница 12 страница 12
- 
                             страница 13 страница 13
- 
                             страница 14 страница 14
- 
                             страница 15 страница 15
- 
                             страница 16 страница 16