ГОСТ 33213-2014 Контроль параметров буровых растворов в промысловых условиях. Растворы на водной основе

Категории ГОСТ 33213-2014 по ОКС:
Статус документа:
действует, введён в действие 01.04.2016
Название на английском языке:
Field testing of drilling fluids. Water-based fluids
Дата актуализации информации по стандарту:
23.10.2025, в 11:29 (несколько дней назад)
Вид стандарта:
Стандарты на методы контроля
Дата начала действия ГОСТа:
2016-04-01
Дата последнего издания документа:
2015-12-15
Число страниц:
82
Назначение ГОСТ 33213-2014:
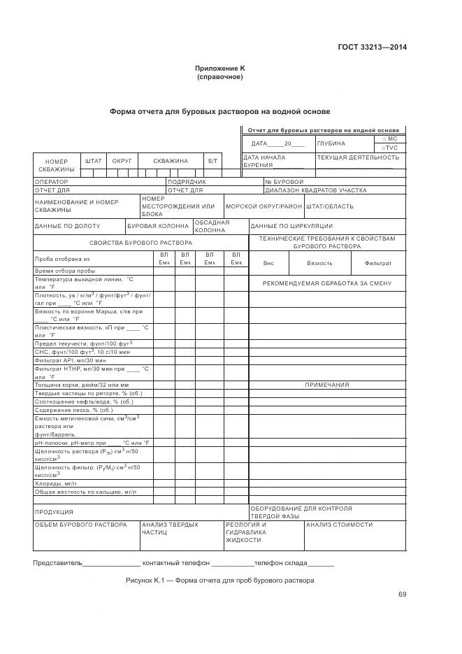
Настоящий стандарт устанавливает стандартные процедуры для определения следующих параметров буровых растворов на водной основе: a) плотность бурового раствора (удельный вес бурового раствора); b) вязкость и прочность геля; c) объем фильтрата; d) содержание водной, углеводородной и твердой фаз; e) содержание песка; f) адсорбция метиленового синего; g) pH; h) щелочность и содержание извести; i) содержание хлорид-иона; j) общая жесткость в пересчете на кальций. Приложения А - К представляют дополнительные методы испытаний, которые могут быть использованы в следующих целях: - химический анализ для определения кальция, магния, сульфата кальция, сульфидов, карбонатов и калия; - определение прочности на сдвиг; - определение удельного электрического сопротивления; - удаление воздуха; - мониторинг коррозии бурильных труб; - отбор проб, контроль и отбраковка; - отбор проб на буровой площадке; - калибровка и верификация стеклянной измерительной посуды, термометров, вискозиметров, чашек ретортной установки и весов для бурового раствора; - испытание для определения закупоривающей способности при высокой температуре и высоком давлении для двух типов оборудования; - пример заполнения формы протокола анализа бурового раствора на водной основе
Документ разработан орг-ей:
Федеральное агентство по техническому регулированию и метрологии (Росстандарт)
Документ принят орг-ей:
Межгосударственный Совет по стандартизации метрологии и сертификации, протокол №73-П
Ключевые слова документа:
буровые растворы, вязкость, контроль параметров, МВТ, плотность, показатель фильтрации, растворы на водной основе, химический анализ фильтрата
Нормативные ссылки, связанные с ГОСТ 33213-2014:

Скачать ГОСТ 33213-2014 вы можете в следующих версиях:

В данный момент версий документа для скачивания не добавлено.

Мы стараемся пополнять базу документов еженедельно и из разных источников, в обозримом будущем версии для этого ГОСТа появятся.

Вы можете просмотреть online текст стандарта ГОСТ 33213-2014

Просмотреть текст ГОСТ 33213-2014

Текст стандарта

  • ГОСТ 33213-2014, страница 1 страница 1
  • ГОСТ 33213-2014, страница 2 страница 2
  • ГОСТ 33213-2014, страница 3 страница 3
  • ГОСТ 33213-2014, страница 4 страница 4
  • ГОСТ 33213-2014, страница 5 страница 5
  • ГОСТ 33213-2014, страница 6 страница 6
  • ГОСТ 33213-2014, страница 7 страница 7
  • ГОСТ 33213-2014, страница 8 страница 8
  • ГОСТ 33213-2014, страница 9 страница 9
  • ГОСТ 33213-2014, страница 10 страница 10
  • ГОСТ 33213-2014, страница 11 страница 11
  • ГОСТ 33213-2014, страница 12 страница 12
  • ГОСТ 33213-2014, страница 13 страница 13
  • ГОСТ 33213-2014, страница 14 страница 14
  • ГОСТ 33213-2014, страница 15 страница 15
  • ГОСТ 33213-2014, страница 16 страница 16
  • ГОСТ 33213-2014, страница 17 страница 17
  • ГОСТ 33213-2014, страница 18 страница 18
  • ГОСТ 33213-2014, страница 19 страница 19
  • ГОСТ 33213-2014, страница 20 страница 20
  • ГОСТ 33213-2014, страница 21 страница 21
  • ГОСТ 33213-2014, страница 22 страница 22
  • ГОСТ 33213-2014, страница 23 страница 23
  • ГОСТ 33213-2014, страница 24 страница 24
  • ГОСТ 33213-2014, страница 25 страница 25
  • ГОСТ 33213-2014, страница 26 страница 26
  • ГОСТ 33213-2014, страница 27 страница 27
  • ГОСТ 33213-2014, страница 28 страница 28
  • ГОСТ 33213-2014, страница 29 страница 29
  • ГОСТ 33213-2014, страница 30 страница 30
  • ГОСТ 33213-2014, страница 31 страница 31
  • ГОСТ 33213-2014, страница 32 страница 32
  • ГОСТ 33213-2014, страница 33 страница 33
  • ГОСТ 33213-2014, страница 34 страница 34
  • ГОСТ 33213-2014, страница 35 страница 35
  • ГОСТ 33213-2014, страница 36 страница 36
  • ГОСТ 33213-2014, страница 37 страница 37
  • ГОСТ 33213-2014, страница 38 страница 38
  • ГОСТ 33213-2014, страница 39 страница 39
  • ГОСТ 33213-2014, страница 40 страница 40
  • ГОСТ 33213-2014, страница 41 страница 41
  • ГОСТ 33213-2014, страница 42 страница 42
  • ГОСТ 33213-2014, страница 43 страница 43
  • ГОСТ 33213-2014, страница 44 страница 44
  • ГОСТ 33213-2014, страница 45 страница 45
  • ГОСТ 33213-2014, страница 46 страница 46
  • ГОСТ 33213-2014, страница 47 страница 47
  • ГОСТ 33213-2014, страница 48 страница 48
  • ГОСТ 33213-2014, страница 49 страница 49
  • ГОСТ 33213-2014, страница 50 страница 50
  • ГОСТ 33213-2014, страница 51 страница 51
  • ГОСТ 33213-2014, страница 52 страница 52
  • ГОСТ 33213-2014, страница 53 страница 53
  • ГОСТ 33213-2014, страница 54 страница 54
  • ГОСТ 33213-2014, страница 55 страница 55
  • ГОСТ 33213-2014, страница 56 страница 56
  • ГОСТ 33213-2014, страница 57 страница 57
  • ГОСТ 33213-2014, страница 58 страница 58
  • ГОСТ 33213-2014, страница 59 страница 59
  • ГОСТ 33213-2014, страница 60 страница 60
  • ГОСТ 33213-2014, страница 61 страница 61
  • ГОСТ 33213-2014, страница 62 страница 62
  • ГОСТ 33213-2014, страница 63 страница 63
  • ГОСТ 33213-2014, страница 64 страница 64
  • ГОСТ 33213-2014, страница 65 страница 65
  • ГОСТ 33213-2014, страница 66 страница 66
  • ГОСТ 33213-2014, страница 67 страница 67
  • ГОСТ 33213-2014, страница 68 страница 68
  • ГОСТ 33213-2014, страница 69 страница 69
  • ГОСТ 33213-2014, страница 70 страница 70
  • ГОСТ 33213-2014, страница 71 страница 71
  • ГОСТ 33213-2014, страница 72 страница 72
  • ГОСТ 33213-2014, страница 73 страница 73
  • ГОСТ 33213-2014, страница 74 страница 74
  • ГОСТ 33213-2014, страница 75 страница 75
  • ГОСТ 33213-2014, страница 76 страница 76
  • ГОСТ 33213-2014, страница 77 страница 77
  • ГОСТ 33213-2014, страница 78 страница 78
  • ГОСТ 33213-2014, страница 79 страница 79
  • ГОСТ 33213-2014, страница 80 страница 80
  • ГОСТ 33213-2014, страница 81 страница 81
  • ГОСТ 33213-2014, страница 82 страница 82