ГОСТ 33257-2015 Арматура трубопроводная. Методы контроля и испытаний

Категории ГОСТ 33257-2015 по ОКС:
Статус документа:
действует, введён в действие 01.04.2016
Название на английском языке:
Pipeline valves. Methods of control and testing
Дата актуализации информации по стандарту:
23.10.2025, в 10:26 (менее 3 месяцев назад)
Вид стандарта:
Стандарты на методы контроля
Дата начала действия ГОСТа:
2016-04-01
Дата последнего издания документа:
2016-02-08
Коды документа ГОСТ 33257-2015:
Код ОКП:
370000
Число страниц:
58
Назначение ГОСТ 33257-2015:
Настоящий стандарт распространяется на трубопроводную арматуру (далее - арматуру) и устанавливает виды и категории испытаний, методы основных (обязательных) испытаний и контроля и критерии оценки результатов основных испытаний. Основные испытания и контроль являются обязательными при проведении всех видов контрольных испытаний серийно изготовляемой арматуры, а также являются составной частью испытаний опытных образцов арматуры
Документ принят орг-ей:
Межгосударственный Совет по стандартизации метрологии и сертификации, протокол №76
Ключевые слова документа:
давление, задвижка, затвор, испытания, клапан, методика испытаний, регулятор, трубопроводная арматура

Скачать ГОСТ 33257-2015 вы можете в следующих версиях:

Тип файла:
Дата добавления:
Загрузок:
Размер:
Тип файла:
PDF с изображениями
Добавлен:
20/11/2025 15:37
Скачиваний:
24
Размер файла:
4.73 Мб
  • ГОСТ 33257-2015, страница 1 страница 1
  • ГОСТ 33257-2015, страница 2 страница 2
  • ГОСТ 33257-2015, страница 3 страница 3
  • ГОСТ 33257-2015, страница 4 страница 4
  • ГОСТ 33257-2015, страница 5 страница 5
  • ГОСТ 33257-2015, страница 6 страница 6
  • ГОСТ 33257-2015, страница 7 страница 7
  • ГОСТ 33257-2015, страница 8 страница 8
  • ГОСТ 33257-2015, страница 9 страница 9
  • ГОСТ 33257-2015, страница 10 страница 10
  • ГОСТ 33257-2015, страница 11 страница 11
  • ГОСТ 33257-2015, страница 12 страница 12
  • ГОСТ 33257-2015, страница 13 страница 13
  • ГОСТ 33257-2015, страница 14 страница 14
  • ГОСТ 33257-2015, страница 15 страница 15
  • ГОСТ 33257-2015, страница 16 страница 16
  • ГОСТ 33257-2015, страница 17 страница 17
  • ГОСТ 33257-2015, страница 18 страница 18
  • ГОСТ 33257-2015, страница 19 страница 19
  • ГОСТ 33257-2015, страница 20 страница 20
  • ГОСТ 33257-2015, страница 21 страница 21
  • ГОСТ 33257-2015, страница 22 страница 22
  • ГОСТ 33257-2015, страница 23 страница 23
  • ГОСТ 33257-2015, страница 24 страница 24
  • ГОСТ 33257-2015, страница 25 страница 25
  • ГОСТ 33257-2015, страница 26 страница 26
  • ГОСТ 33257-2015, страница 27 страница 27
  • ГОСТ 33257-2015, страница 28 страница 28
  • ГОСТ 33257-2015, страница 29 страница 29
  • ГОСТ 33257-2015, страница 30 страница 30
  • ГОСТ 33257-2015, страница 31 страница 31
  • ГОСТ 33257-2015, страница 32 страница 32
  • ГОСТ 33257-2015, страница 33 страница 33
  • ГОСТ 33257-2015, страница 34 страница 34
  • ГОСТ 33257-2015, страница 35 страница 35
  • ГОСТ 33257-2015, страница 36 страница 36
  • ГОСТ 33257-2015, страница 37 страница 37
  • ГОСТ 33257-2015, страница 38 страница 38
  • ГОСТ 33257-2015, страница 39 страница 39
  • ГОСТ 33257-2015, страница 40 страница 40
  • ГОСТ 33257-2015, страница 41 страница 41
  • ГОСТ 33257-2015, страница 42 страница 42
  • ГОСТ 33257-2015, страница 43 страница 43
  • ГОСТ 33257-2015, страница 44 страница 44
  • ГОСТ 33257-2015, страница 45 страница 45
  • ГОСТ 33257-2015, страница 46 страница 46
  • ГОСТ 33257-2015, страница 47 страница 47
  • ГОСТ 33257-2015, страница 48 страница 48
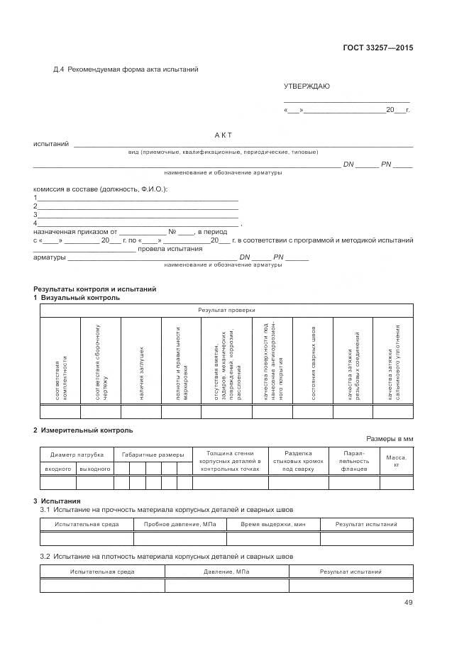
  • ГОСТ 33257-2015, страница 49 страница 49
  • ГОСТ 33257-2015, страница 50 страница 50
  • ГОСТ 33257-2015, страница 51 страница 51
  • ГОСТ 33257-2015, страница 52 страница 52
  • ГОСТ 33257-2015, страница 53 страница 53
  • ГОСТ 33257-2015, страница 54 страница 54
  • ГОСТ 33257-2015, страница 55 страница 55
  • ГОСТ 33257-2015, страница 56 страница 56
  • ГОСТ 33257-2015, страница 57 страница 57
  • ГОСТ 33257-2015, страница 58 страница 58