ГОСТ 33713-2015 Краны грузоподъемные. Регистраторы параметров работы. Общие требования

Категории ГОСТ 33713-2015 по ОКС:
Статус документа:
действует, введён в действие 01.04.2017
Название на английском языке:
Cranes. Registrars of operating parameters. General requirements
Дата актуализации информации по стандарту:
24.10.2025, в 09:40 (менее месяца назад)
Вид стандарта:
Стандарты на продукцию (услуги)
Дата начала действия ГОСТа:
2017-04-01
Дата последнего издания документа:
2016-07-21
Число страниц:
24
Назначение ГОСТ 33713-2015:
Настоящий стандарт устанавливает общие требования к регистраторам параметров работы (далее-«РП») грузоподъемных кранов (далее - «краны») применительно к возможности получения РП необходимой информации с заданной достоверностью об условиях эксплуатации кранов и причинах их аварий и инцидентов
Документ разработан орг-ей:
Федеральное агентство по техническому регулированию и метрологии (Росстандарт)
Документ принят орг-ей:
Межгосударственный Совет по стандартизации метрологии и сертификации, протокол №83-П
Ключевые слова документа:
краны грузоподъемные, нормативное характеристическое число, прибор считывания, регистратор параметров, характеристическое число
Нормативные ссылки, связанные с ГОСТ 33713-2015:

Скачать ГОСТ 33713-2015 вы можете в следующих версиях:

В данный момент версий документа для скачивания не добавлено.

Мы стараемся пополнять базу документов еженедельно и из разных источников, в обозримом будущем версии для этого ГОСТа появятся.

Вы можете просмотреть online текст стандарта ГОСТ 33713-2015

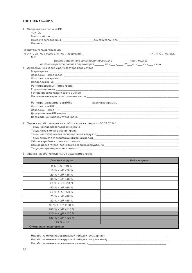
Просмотреть текст ГОСТ 33713-2015

Текст стандарта

  • ГОСТ 33713-2015, страница 1 страница 1
  • ГОСТ 33713-2015, страница 2 страница 2
  • ГОСТ 33713-2015, страница 3 страница 3
  • ГОСТ 33713-2015, страница 4 страница 4
  • ГОСТ 33713-2015, страница 5 страница 5
  • ГОСТ 33713-2015, страница 6 страница 6
  • ГОСТ 33713-2015, страница 7 страница 7
  • ГОСТ 33713-2015, страница 8 страница 8
  • ГОСТ 33713-2015, страница 9 страница 9
  • ГОСТ 33713-2015, страница 10 страница 10
  • ГОСТ 33713-2015, страница 11 страница 11
  • ГОСТ 33713-2015, страница 12 страница 12
  • ГОСТ 33713-2015, страница 13 страница 13
  • ГОСТ 33713-2015, страница 14 страница 14
  • ГОСТ 33713-2015, страница 15 страница 15
  • ГОСТ 33713-2015, страница 16 страница 16
  • ГОСТ 33713-2015, страница 17 страница 17
  • ГОСТ 33713-2015, страница 18 страница 18
  • ГОСТ 33713-2015, страница 19 страница 19
  • ГОСТ 33713-2015, страница 20 страница 20
  • ГОСТ 33713-2015, страница 21 страница 21
  • ГОСТ 33713-2015, страница 22 страница 22
  • ГОСТ 33713-2015, страница 23 страница 23
  • ГОСТ 33713-2015, страница 24 страница 24