ГОСТ ISO 3977-3-2017 Турбины газовые. Технические условия на закупку. Часть 3. Требования к проектированию

Категории ГОСТ ISO 3977-3-2017 по ОКС:
Статус документа:
действует, введён в действие 01.06.2019
Название на английском языке:
Gas turbines. Procurement. Part 3. Design requirements
Дата актуализации информации по стандарту:
19.06.2025, в 19:16 (менее полугода назад)
Вид стандарта:
Стандарты на продукцию (услуги)
Дата начала действия ГОСТа:
2019-06-01
Дата последнего издания документа:
2018-10-24
Число страниц:
66
Назначение ГОСТ ISO 3977-3-2017:
Настоящий стандарт распространяется на газотурбинные силовые установки открытого цикла, а также на ГТУ замкнутого и полузамкнутого циклов. Настоящий стандарт также может применяться к газотурбинным двигателям в установках простого, комбинированного и регенеративного циклов, работающих в открытых циклах. Настоящий стандарт не распространяется на ГТД, используемые для приведения в движение летательных аппаратов, дорожностроительных и передвигающихся по земле машин, а также тракторов сельскохозяйственного и промышленного применения и дорожных транспортных средств. Для установок, использующих особые источники тепла (например, химический процесс, ядерные реакторы, различного типа печи и котлы), настоящий стандарт может применяться в качестве базиса. Настоящий стандарт рассматривает требования пользователя к конструкции при комплектации пэкиджером газотурбинных установок и газотурбинных систем различного применения, включая ГТУ для систем комбинированного цикла и их вспомогательных агрегатов. Настоящий стандарт содержит техническую информацию и средства, которые следует использовать при закупке
Документ разработан орг-ей:
Федеральное агентство по техническому регулированию и метрологии (Росстандарт)
Документ принят орг-ей:
Межгосударственный Совет по стандартизации метрологии и сертификации, протокол №52-2017
Ключевые слова документа:
газотурбинная установка, проектирование
Нормативные ссылки, связанные с ГОСТ ISO 3977-3-2017:
Ссылки на прочие:
ASTM A-194;ASTM A-307;NACE MR-0175/ISO 15156

Скачать ГОСТ ISO 3977-3-2017 вы можете в следующих версиях:

В данный момент версий документа для скачивания не добавлено.

Мы стараемся пополнять базу документов еженедельно и из разных источников, в обозримом будущем версии для этого ГОСТа появятся.

Вы можете просмотреть online текст стандарта ГОСТ ISO 3977-3-2017

Просмотреть текст ГОСТ ISO 3977-3-2017

Текст стандарта

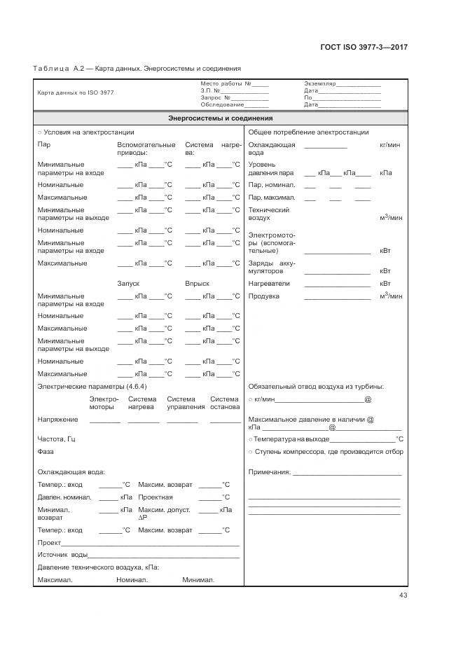
  • ГОСТ ISO 3977-3-2017, страница 1 страница 1
  • ГОСТ ISO 3977-3-2017, страница 2 страница 2
  • ГОСТ ISO 3977-3-2017, страница 3 страница 3
  • ГОСТ ISO 3977-3-2017, страница 4 страница 4
  • ГОСТ ISO 3977-3-2017, страница 5 страница 5
  • ГОСТ ISO 3977-3-2017, страница 6 страница 6
  • ГОСТ ISO 3977-3-2017, страница 7 страница 7
  • ГОСТ ISO 3977-3-2017, страница 8 страница 8
  • ГОСТ ISO 3977-3-2017, страница 9 страница 9
  • ГОСТ ISO 3977-3-2017, страница 10 страница 10
  • ГОСТ ISO 3977-3-2017, страница 11 страница 11
  • ГОСТ ISO 3977-3-2017, страница 12 страница 12
  • ГОСТ ISO 3977-3-2017, страница 13 страница 13
  • ГОСТ ISO 3977-3-2017, страница 14 страница 14
  • ГОСТ ISO 3977-3-2017, страница 15 страница 15
  • ГОСТ ISO 3977-3-2017, страница 16 страница 16
  • ГОСТ ISO 3977-3-2017, страница 17 страница 17
  • ГОСТ ISO 3977-3-2017, страница 18 страница 18
  • ГОСТ ISO 3977-3-2017, страница 19 страница 19
  • ГОСТ ISO 3977-3-2017, страница 20 страница 20
  • ГОСТ ISO 3977-3-2017, страница 21 страница 21
  • ГОСТ ISO 3977-3-2017, страница 22 страница 22
  • ГОСТ ISO 3977-3-2017, страница 23 страница 23
  • ГОСТ ISO 3977-3-2017, страница 24 страница 24
  • ГОСТ ISO 3977-3-2017, страница 25 страница 25
  • ГОСТ ISO 3977-3-2017, страница 26 страница 26
  • ГОСТ ISO 3977-3-2017, страница 27 страница 27
  • ГОСТ ISO 3977-3-2017, страница 28 страница 28
  • ГОСТ ISO 3977-3-2017, страница 29 страница 29
  • ГОСТ ISO 3977-3-2017, страница 30 страница 30
  • ГОСТ ISO 3977-3-2017, страница 31 страница 31
  • ГОСТ ISO 3977-3-2017, страница 32 страница 32
  • ГОСТ ISO 3977-3-2017, страница 33 страница 33
  • ГОСТ ISO 3977-3-2017, страница 34 страница 34
  • ГОСТ ISO 3977-3-2017, страница 35 страница 35
  • ГОСТ ISO 3977-3-2017, страница 36 страница 36
  • ГОСТ ISO 3977-3-2017, страница 37 страница 37
  • ГОСТ ISO 3977-3-2017, страница 38 страница 38
  • ГОСТ ISO 3977-3-2017, страница 39 страница 39
  • ГОСТ ISO 3977-3-2017, страница 40 страница 40
  • ГОСТ ISO 3977-3-2017, страница 41 страница 41
  • ГОСТ ISO 3977-3-2017, страница 42 страница 42
  • ГОСТ ISO 3977-3-2017, страница 43 страница 43
  • ГОСТ ISO 3977-3-2017, страница 44 страница 44
  • ГОСТ ISO 3977-3-2017, страница 45 страница 45
  • ГОСТ ISO 3977-3-2017, страница 46 страница 46
  • ГОСТ ISO 3977-3-2017, страница 47 страница 47
  • ГОСТ ISO 3977-3-2017, страница 48 страница 48
  • ГОСТ ISO 3977-3-2017, страница 49 страница 49
  • ГОСТ ISO 3977-3-2017, страница 50 страница 50
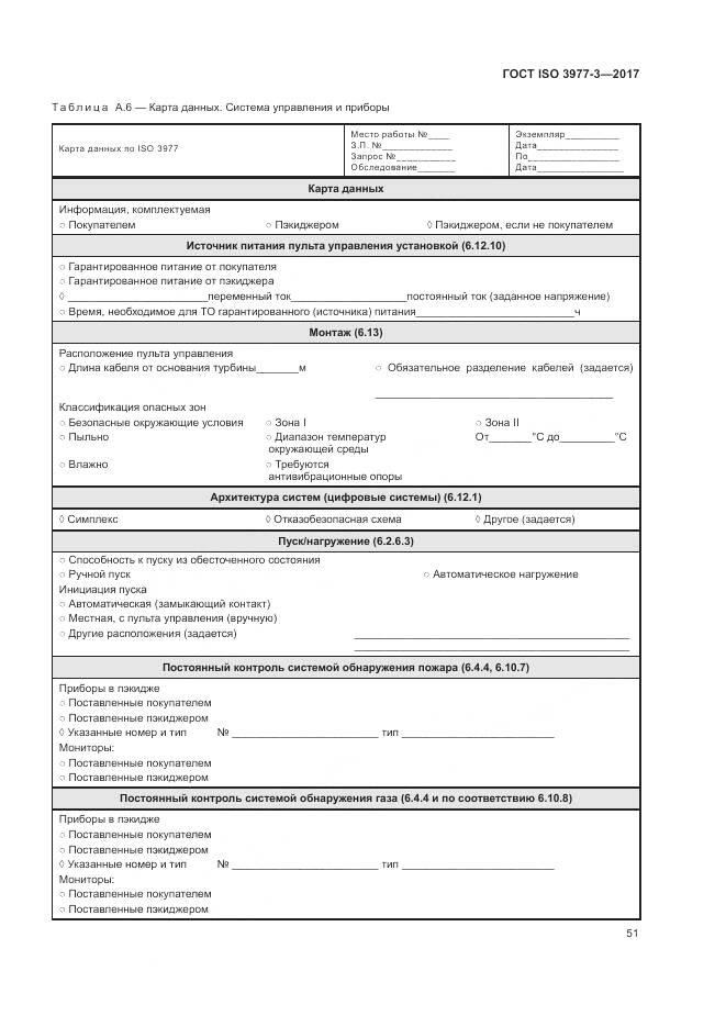
  • ГОСТ ISO 3977-3-2017, страница 51 страница 51
  • ГОСТ ISO 3977-3-2017, страница 52 страница 52
  • ГОСТ ISO 3977-3-2017, страница 53 страница 53
  • ГОСТ ISO 3977-3-2017, страница 54 страница 54
  • ГОСТ ISO 3977-3-2017, страница 55 страница 55
  • ГОСТ ISO 3977-3-2017, страница 56 страница 56
  • ГОСТ ISO 3977-3-2017, страница 57 страница 57
  • ГОСТ ISO 3977-3-2017, страница 58 страница 58
  • ГОСТ ISO 3977-3-2017, страница 59 страница 59
  • ГОСТ ISO 3977-3-2017, страница 60 страница 60
  • ГОСТ ISO 3977-3-2017, страница 61 страница 61
  • ГОСТ ISO 3977-3-2017, страница 62 страница 62
  • ГОСТ ISO 3977-3-2017, страница 63 страница 63
  • ГОСТ ISO 3977-3-2017, страница 64 страница 64
  • ГОСТ ISO 3977-3-2017, страница 65 страница 65
  • ГОСТ ISO 3977-3-2017, страница 66 страница 66