ГОСТ Р 55738-2013 Шпильки и керамические кольца для сварки

Категории ГОСТ Р 55738-2013 по ОКС:
Статус документа:
действует, введён в действие 01.01.2015
Название на английском языке:
Studs and ceramic ferrules for stud welding
Дата актуализации информации по стандарту:
22.10.2025, в 11:05 (менее 3 месяцев назад)
Вид стандарта:
временно не известен
Дата начала действия ГОСТа:
2015-01-01
Коды документа ГОСТ Р 55738-2013:
Код ОКП:
166000
Код КГС:
Г32
Число страниц:
50
Назначение ГОСТ Р 55738-2013:
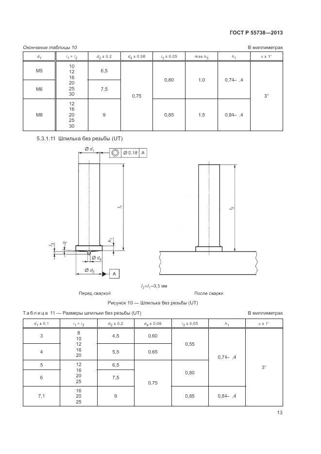
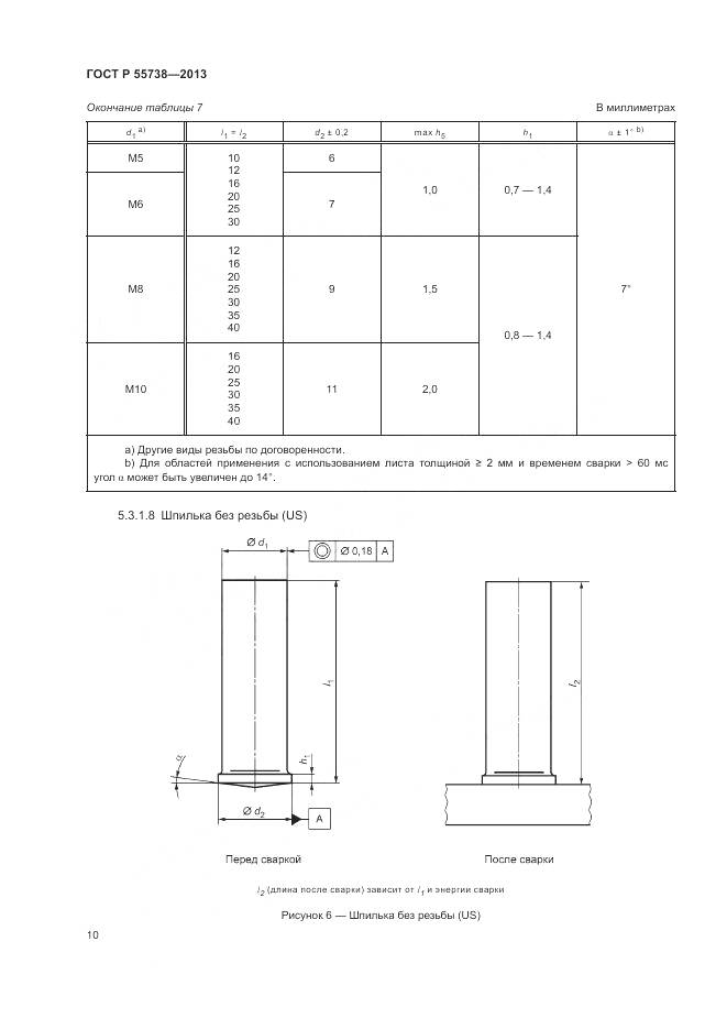
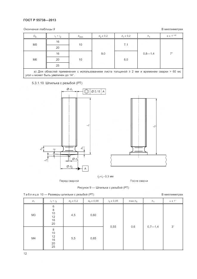
Настоящий стандарт распространяется на металлические привариваемые шпильки различного назначения и керамические кольца для их сварки и устанавливает: - технические требования к шпилькам и керамическим кольцам для дуговой сварки шпилек; - размеры, материалы, механические свойства, объемы и методы контроля и критерии оценки соответствия
Ключевые слова документа:
керамические кольца, керамические кольца для сварки, конструкция и размеры, маркировка, методы контроля, обозначение, технические требования, шпильки, шпильки металлические привариваемые

Скачать ГОСТ Р 55738-2013 вы можете в следующих версиях:

Тип файла:
Дата добавления:
Загрузок:
Размер:
Тип файла:
PDF с изображениями
Добавлен:
20/11/2025 16:15
Скачиваний:
4
Размер файла:
3.65 Мб
  • ГОСТ Р 55738-2013, страница 1 страница 1
  • ГОСТ Р 55738-2013, страница 2 страница 2
  • ГОСТ Р 55738-2013, страница 3 страница 3
  • ГОСТ Р 55738-2013, страница 4 страница 4
  • ГОСТ Р 55738-2013, страница 5 страница 5
  • ГОСТ Р 55738-2013, страница 6 страница 6
  • ГОСТ Р 55738-2013, страница 7 страница 7
  • ГОСТ Р 55738-2013, страница 8 страница 8
  • ГОСТ Р 55738-2013, страница 9 страница 9
  • ГОСТ Р 55738-2013, страница 10 страница 10
  • ГОСТ Р 55738-2013, страница 11 страница 11
  • ГОСТ Р 55738-2013, страница 12 страница 12
  • ГОСТ Р 55738-2013, страница 13 страница 13
  • ГОСТ Р 55738-2013, страница 14 страница 14
  • ГОСТ Р 55738-2013, страница 15 страница 15
  • ГОСТ Р 55738-2013, страница 16 страница 16
  • ГОСТ Р 55738-2013, страница 17 страница 17
  • ГОСТ Р 55738-2013, страница 18 страница 18
  • ГОСТ Р 55738-2013, страница 19 страница 19
  • ГОСТ Р 55738-2013, страница 20 страница 20
  • ГОСТ Р 55738-2013, страница 21 страница 21
  • ГОСТ Р 55738-2013, страница 22 страница 22
  • ГОСТ Р 55738-2013, страница 23 страница 23
  • ГОСТ Р 55738-2013, страница 24 страница 24
  • ГОСТ Р 55738-2013, страница 25 страница 25
  • ГОСТ Р 55738-2013, страница 26 страница 26
  • ГОСТ Р 55738-2013, страница 27 страница 27
  • ГОСТ Р 55738-2013, страница 28 страница 28
  • ГОСТ Р 55738-2013, страница 29 страница 29
  • ГОСТ Р 55738-2013, страница 30 страница 30
  • ГОСТ Р 55738-2013, страница 31 страница 31
  • ГОСТ Р 55738-2013, страница 32 страница 32
  • ГОСТ Р 55738-2013, страница 33 страница 33
  • ГОСТ Р 55738-2013, страница 34 страница 34
  • ГОСТ Р 55738-2013, страница 35 страница 35
  • ГОСТ Р 55738-2013, страница 36 страница 36
  • ГОСТ Р 55738-2013, страница 37 страница 37
  • ГОСТ Р 55738-2013, страница 38 страница 38
  • ГОСТ Р 55738-2013, страница 39 страница 39
  • ГОСТ Р 55738-2013, страница 40 страница 40
  • ГОСТ Р 55738-2013, страница 41 страница 41
  • ГОСТ Р 55738-2013, страница 42 страница 42
  • ГОСТ Р 55738-2013, страница 43 страница 43
  • ГОСТ Р 55738-2013, страница 44 страница 44
  • ГОСТ Р 55738-2013, страница 45 страница 45
  • ГОСТ Р 55738-2013, страница 46 страница 46
  • ГОСТ Р 55738-2013, страница 47 страница 47
  • ГОСТ Р 55738-2013, страница 48 страница 48
  • ГОСТ Р 55738-2013, страница 49 страница 49
  • ГОСТ Р 55738-2013, страница 50 страница 50