ГОСТ Р 56298-2014 Дворики железобетонные защитные. Технические требования и оценка прочности

Категории ГОСТ Р 56298-2014 по ОКС:
Статус документа:
действует, введён в действие 01.07.2015
Название на английском языке:
Reinforced concrete containment antechambers for explosives facility sites. Technical requirements and strength assessment
Дата актуализации информации по стандарту:
22.10.2025, в 12:36 (вчера)
Вид стандарта:
временно не известен
Дата начала действия ГОСТа:
2015-07-01
Число страниц:
28
Назначение ГОСТ Р 56298-2014:
не указано
Нормативные ссылки, связанные с ГОСТ Р 56298-2014:

Скачать ГОСТ Р 56298-2014 вы можете в следующих версиях:

Дата добавления:
Тип файла:
Загрузок:
Размер:
-
23/01/2016 18:07
PDF с изображениями
0
-

Текст стандарта

  • ГОСТ Р 56298-2014, страница 1 страница 1
  • ГОСТ Р 56298-2014, страница 2 страница 2
  • ГОСТ Р 56298-2014, страница 3 страница 3
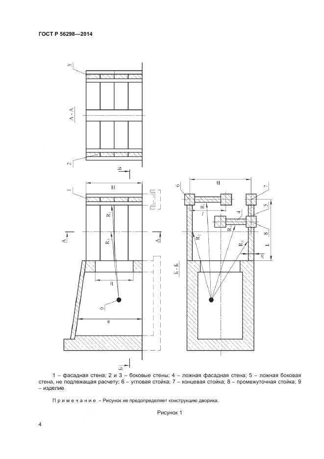
  • ГОСТ Р 56298-2014, страница 4 страница 4
  • ГОСТ Р 56298-2014, страница 5 страница 5
  • ГОСТ Р 56298-2014, страница 6 страница 6
  • ГОСТ Р 56298-2014, страница 7 страница 7
  • ГОСТ Р 56298-2014, страница 8 страница 8
  • ГОСТ Р 56298-2014, страница 9 страница 9
  • ГОСТ Р 56298-2014, страница 10 страница 10
  • ГОСТ Р 56298-2014, страница 11 страница 11
  • ГОСТ Р 56298-2014, страница 12 страница 12
  • ГОСТ Р 56298-2014, страница 13 страница 13
  • ГОСТ Р 56298-2014, страница 14 страница 14
  • ГОСТ Р 56298-2014, страница 15 страница 15
  • ГОСТ Р 56298-2014, страница 16 страница 16
  • ГОСТ Р 56298-2014, страница 17 страница 17
  • ГОСТ Р 56298-2014, страница 18 страница 18
  • ГОСТ Р 56298-2014, страница 19 страница 19
  • ГОСТ Р 56298-2014, страница 20 страница 20
  • ГОСТ Р 56298-2014, страница 21 страница 21
  • ГОСТ Р 56298-2014, страница 22 страница 22
  • ГОСТ Р 56298-2014, страница 23 страница 23
  • ГОСТ Р 56298-2014, страница 24 страница 24
  • ГОСТ Р 56298-2014, страница 25 страница 25
  • ГОСТ Р 56298-2014, страница 26 страница 26
  • ГОСТ Р 56298-2014, страница 27 страница 27
  • ГОСТ Р 56298-2014, страница 28 страница 28