ГОСТ IEC 60269-4-1-2011 Предохранители плавкие низковольтные. Часть 4-1. Дополнительные требования к плавким вставкам для защиты полупроводниковых устройств. Разделы I-III. Примеры типов стандартизованных плавких вставок

Категории ГОСТ IEC 60269-4-1-2011 по ОКС:
Статус документа:
действует, введён в действие 01.01.2013
Название на английском языке:
Low-voltage fuses. Part 4-1. Supplementary requirements for fuse-links for the protection of semiconductor devices. Sections I to III. Examples of types of standardized fuse-links
Дата актуализации информации по стандарту:
17.09.2019, в 14:53 (более года назад)
Вид стандарта:
Стандарты на продукцию (услуги)
Дата начала действия ГОСТа:
2013-01-01
Дата последнего издания документа:
2014-07-21
Коды документа ГОСТ IEC 60269-4-1-2011:
Код КГС:
Е71
Число страниц:
20
Назначение ГОСТ IEC 60269-4-1-2011:
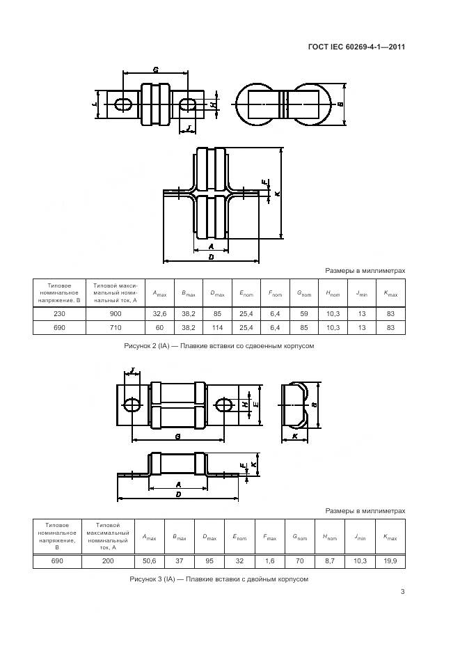
Настоящий стандарт распространяется на размеры, но не на характеристики плавких вставок. Плавкие вставки должны соответствовать требованиям IEC 60269-4 и, кроме того, значения потерь мощности плавкой вставки не должны превышать значений рассеиваемой мощности оснований или держателей плавких предохранителей. Если значения потери мощности плавкой вставки превышают значения рассеиваемой мощности стандартного основания или держателя плавкого предохранителя, то изготовитель должен привести сниженные значения номинальных характеристик. К плавким вставкам с болтовыми соединениями применяют следующие дополнительные требования. Значения номинальных напряжений и токи должны быть равны: - переменное напряжение - от 230 В и ток до 900 А включительно; - переменное напряжение - от 690 В и ток до 710 А включительно
Документ разработан орг-ей:
Федеральное агентство по техническому регулированию и метрологии
Документ принят орг-ей:
Межгосударственный Совет по стандартизации метрологии и сертификации, протокол №40-2011
Ключевые слова документа:
плавкие вставки, предохранители низковольтные плавкие, примеры стандартизованных размеров
Нормативные ссылки, связанные с ГОСТ IEC 60269-4-1-2011:

Скачать ГОСТ IEC 60269-4-1-2011 вы можете в следующих версиях:

Дата добавления:
Тип файла:
Загрузок:
Размер:
23/01/2016 17:56
PDF с изображениями
0
0.51 Мб

Текст стандарта

  • ГОСТ IEC 60269-4-1-2011, страница 1 страница 1
  • ГОСТ IEC 60269-4-1-2011, страница 2 страница 2
  • ГОСТ IEC 60269-4-1-2011, страница 3 страница 3
  • ГОСТ IEC 60269-4-1-2011, страница 4 страница 4
  • ГОСТ IEC 60269-4-1-2011, страница 5 страница 5
  • ГОСТ IEC 60269-4-1-2011, страница 6 страница 6
  • ГОСТ IEC 60269-4-1-2011, страница 7 страница 7
  • ГОСТ IEC 60269-4-1-2011, страница 8 страница 8
  • ГОСТ IEC 60269-4-1-2011, страница 9 страница 9
  • ГОСТ IEC 60269-4-1-2011, страница 10 страница 10
  • ГОСТ IEC 60269-4-1-2011, страница 11 страница 11
  • ГОСТ IEC 60269-4-1-2011, страница 12 страница 12
  • ГОСТ IEC 60269-4-1-2011, страница 13 страница 13
  • ГОСТ IEC 60269-4-1-2011, страница 14 страница 14
  • ГОСТ IEC 60269-4-1-2011, страница 15 страница 15
  • ГОСТ IEC 60269-4-1-2011, страница 16 страница 16
  • ГОСТ IEC 60269-4-1-2011, страница 17 страница 17
  • ГОСТ IEC 60269-4-1-2011, страница 18 страница 18
  • ГОСТ IEC 60269-4-1-2011, страница 19 страница 19
  • ГОСТ IEC 60269-4-1-2011, страница 20 страница 20