ГОСТ IEC 60309-4-2017 Вилки, штепсельные розетки и соединительные устройства промышленного назначения. Часть 4. Переключаемые ответвители и соединители с блокировкой и без нее

Категории ГОСТ IEC 60309-4-2017 по ОКС:
Статус документа:
действует, введён в действие 01.06.2019
Название на английском языке:
Plugs, socket-outlets and couplers for industrial purposes. Part 4. Switched socket-outlets and connectors with or without interlock
Дата актуализации информации по стандарту:
06.11.2025, в 14:40 (вчера)
Вид стандарта:
Стандарты на продукцию (услуги)
Дата начала действия ГОСТа:
2019-06-01
Дата последнего издания документа:
2018-11-02
Число страниц:
25
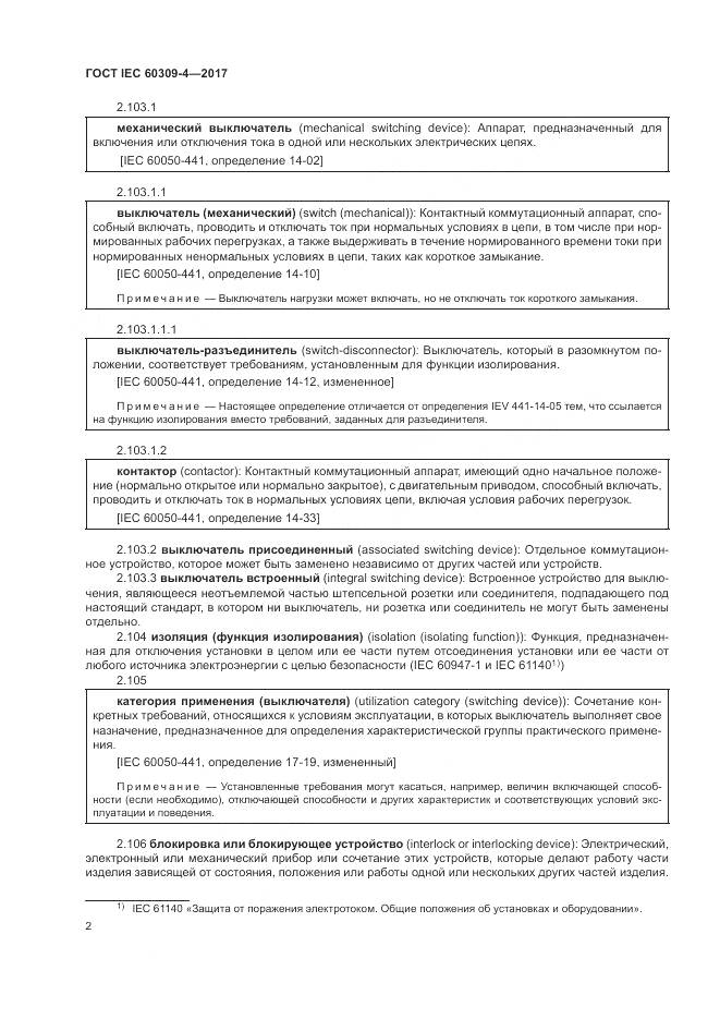
Назначение ГОСТ IEC 60309-4-2017:
Настоящий стандарт распространяется на независимые блоки, которые объединяют в одном корпусе штепсельную розетку или соединитель в соответствии с IEC 60309-1 или IEC 60309-2 и выключатель на номинальное рабочее напряжение не выше 1000 В постоянного и переменного тока частотой до 500 Гц, и номинальный ток не более 800 А, в основном промышленного назначения для использования внутри и снаружи помещения
Документ разработан орг-ей:
Федеральное агентство по техническому регулированию и метрологии (Росстандарт)
Документ принят орг-ей:
Межгосударственный Совет по стандартизации метрологии и сертификации, протокол №52-2017
Ключевые слова документа:
методы испытаний, переключаемые ответвители, переключаемые соединители, требования, устройства блокировки
Нормативные ссылки, связанные с ГОСТ IEC 60309-4-2017:

Скачать ГОСТ IEC 60309-4-2017 вы можете в следующих версиях:

В данный момент версий документа для скачивания не добавлено.

Мы стараемся пополнять базу документов еженедельно и из разных источников, в обозримом будущем версии для этого ГОСТа появятся.

Вы можете просмотреть online текст стандарта ГОСТ IEC 60309-4-2017

Просмотреть текст ГОСТ IEC 60309-4-2017

Текст стандарта

  • ГОСТ IEC 60309-4-2017, страница 1 страница 1
  • ГОСТ IEC 60309-4-2017, страница 2 страница 2
  • ГОСТ IEC 60309-4-2017, страница 3 страница 3
  • ГОСТ IEC 60309-4-2017, страница 4 страница 4
  • ГОСТ IEC 60309-4-2017, страница 5 страница 5
  • ГОСТ IEC 60309-4-2017, страница 6 страница 6
  • ГОСТ IEC 60309-4-2017, страница 7 страница 7
  • ГОСТ IEC 60309-4-2017, страница 8 страница 8
  • ГОСТ IEC 60309-4-2017, страница 9 страница 9
  • ГОСТ IEC 60309-4-2017, страница 10 страница 10
  • ГОСТ IEC 60309-4-2017, страница 11 страница 11
  • ГОСТ IEC 60309-4-2017, страница 12 страница 12
  • ГОСТ IEC 60309-4-2017, страница 13 страница 13
  • ГОСТ IEC 60309-4-2017, страница 14 страница 14
  • ГОСТ IEC 60309-4-2017, страница 15 страница 15
  • ГОСТ IEC 60309-4-2017, страница 16 страница 16
  • ГОСТ IEC 60309-4-2017, страница 17 страница 17
  • ГОСТ IEC 60309-4-2017, страница 18 страница 18
  • ГОСТ IEC 60309-4-2017, страница 19 страница 19
  • ГОСТ IEC 60309-4-2017, страница 20 страница 20
  • ГОСТ IEC 60309-4-2017, страница 21 страница 21
  • ГОСТ IEC 60309-4-2017, страница 22 страница 22
  • ГОСТ IEC 60309-4-2017, страница 23 страница 23
  • ГОСТ IEC 60309-4-2017, страница 24 страница 24
  • ГОСТ IEC 60309-4-2017, страница 25 страница 25