ГОСТ ISO 8589-2014 Органолептический анализ. Общее руководство по проектированию лабораторных помещений

Категории ГОСТ ISO 8589-2014 по ОКС:
Статус документа:
действует, введён в действие 01.01.2016
Название на английском языке:
Sensory analysis. General guidance for the design of test rooms
Дата актуализации информации по стандарту:
22.10.2025, в 15:42 (менее месяца назад)
Вид стандарта:
Стандарты на методы контроля
Дата начала действия ГОСТа:
2016-01-01
Дата последнего издания документа:
2015-03-02
Число страниц:
20
Назначение ГОСТ ISO 8589-2014:
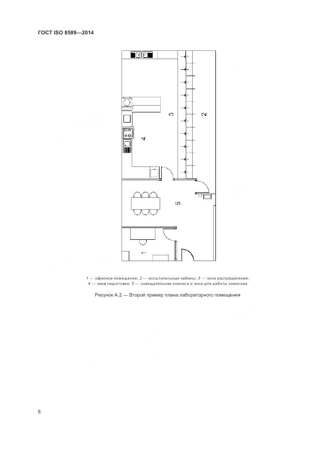
Настоящий стандарт содержит общее руководство по проектированию лабораторных помещений, предназначенных для проведения органолептического анализа продукции. Настоящий стандарт содержит описание требований к планировке лабораторных помещений, в число которых входят зона испытаний, зона подготовки и офисное помещение, устанавливая основные требования и требования, выполнение которых желательно. Применение настоящего стандарта не ограничено каким-либо определенным видом продукции или испытаний
Документ разработан орг-ей:
Федеральное агентство по техническому регулированию и метрологии (Росстандарт)
Документ принят орг-ей:
Межгосударственный Совет по стандартизации метрологии и сертификации, протокол №69-П
Ключевые слова документа:
зона для исследований комиссией, зона испытаний, зона подготовки, зона распределения, испытатель, испытательная кабина, лабораторное помещение, непищевая продукция, органолептический анализ, офисное помещение, пищевая продукция, руководитель комиссии
Нормативные ссылки, связанные с ГОСТ ISO 8589-2014:

Скачать ГОСТ ISO 8589-2014 вы можете в следующих версиях:

Дата добавления:
Тип файла:
Загрузок:
Размер:
-
23/01/2016 17:54
PDF с изображениями
0
-

Текст стандарта

  • ГОСТ ISO 8589-2014, страница 1 страница 1
  • ГОСТ ISO 8589-2014, страница 2 страница 2
  • ГОСТ ISO 8589-2014, страница 3 страница 3
  • ГОСТ ISO 8589-2014, страница 4 страница 4
  • ГОСТ ISO 8589-2014, страница 5 страница 5
  • ГОСТ ISO 8589-2014, страница 6 страница 6
  • ГОСТ ISO 8589-2014, страница 7 страница 7
  • ГОСТ ISO 8589-2014, страница 8 страница 8
  • ГОСТ ISO 8589-2014, страница 9 страница 9
  • ГОСТ ISO 8589-2014, страница 10 страница 10
  • ГОСТ ISO 8589-2014, страница 11 страница 11
  • ГОСТ ISO 8589-2014, страница 12 страница 12
  • ГОСТ ISO 8589-2014, страница 13 страница 13
  • ГОСТ ISO 8589-2014, страница 14 страница 14
  • ГОСТ ISO 8589-2014, страница 15 страница 15
  • ГОСТ ISO 8589-2014, страница 16 страница 16
  • ГОСТ ISO 8589-2014, страница 17 страница 17
  • ГОСТ ISO 8589-2014, страница 18 страница 18
  • ГОСТ ISO 8589-2014, страница 19 страница 19
  • ГОСТ ISO 8589-2014, страница 20 страница 20